Vorher/Nachher Fassade Strassenseite
Vorher/Nachher Fassade Gartenseite

Fassade Strassenseite

Eingangssituation

Materialisierung Fassade

Wohnzimmer mit Sitzfenster

Badezimmer

Treppenhaus

Schlafzimmer mit Sitzfenster

Situationsplan

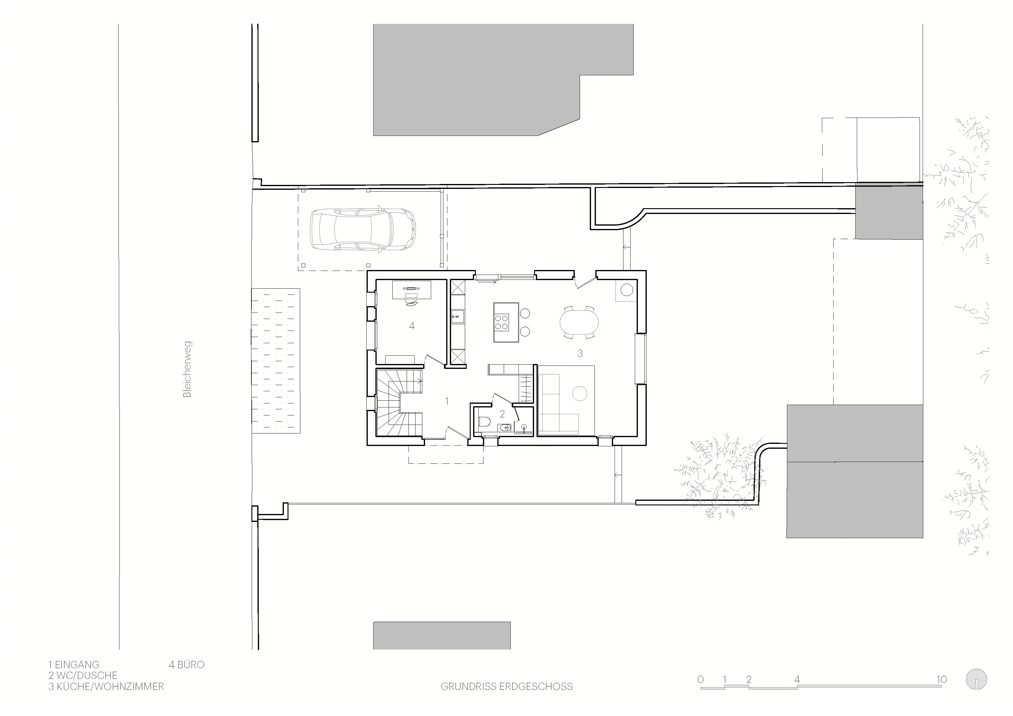
Grundriss Erdgeschoss

Grundriss Obergeschoss

Ansicht Nord

Ansicht Ost

Ansicht Süd

Ansicht West